空調舒適性評價室主要用于評價空調器的舒適程度,為了滿足人體在空調房里的舒適度,各個空調生產企業都在舒適性這方面做了不少功夫,在設計空調舒適性評價室的時候,應該要怎么設計?下面我們來看看。
以下是環儀儀器的空調器舒適性評價室(型號:HYPD-SD-45)的設計方案,供大家參考:


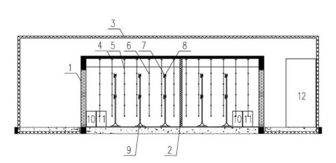
1.如上圖所示,空調舒適性評價室的 隔 墻 2 采用輕質材料制作,隔墻 2 可以移動或移除,從而形成不同的房間面積或房間數量,以便適應不同大小的空調器進行測試 ;
2.試驗室房間的各種圍護材料需要選用現有民用建筑使用的具備代表性的建材,以便真實反映房間內外的漏熱、漏濕以及建材的熱容特性 ;
3.房間設有門 14 和窗戶 15 與戶外環境艙 3 相通,戶外環境艙 3 包圍民居 1,使民居 1 處于一個環境空間中。
4.外環境艙 3 為現有技術中常用的保溫冷庫結構,由保溫材料建造,設有空氣調節機組 12 和冷凍機組 13,通過空氣調節機組 12 和冷凍機組 13,可營造各種不同的戶外溫濕度組合的氣候環境。
5.不同的戶外溫濕度環境可以形成不同的墻體、門窗漏熱量和滲濕量,也同時提供給被測空調器室外機運行所需的工況環境。
環儀儀器空調器舒適性試驗室將為開發以人體熱舒適性為控制目標的新型空調產品、進行空調設備環境適應性試驗以及進行環境舒適性評價起到了重要作用。









